¿Eres Profesional Independiente o empresa? ¡Regístrate gratis! »

habitissimo - Remodelación y Servicios para el Hogar
Menú
Accede Crea una cuenta
  • Directorio de profesionales
  • Guía de precios
  • Preguntas a la comunidad
  • Ideas y proyectos
  • Galería de fotos
  • Procenter
  • Ayuda
¿Eres Profesional Independiente o empresa?
  • Directorio de profesionales
  • Guía de precios
  • Comunidad
    • Preguntas a la comunidad
    • Ideas y proyectos
    • Galería de fotos
    • Procenter
  • Ayuda
Accede Accede
Accede

Iniciar sesión

Profesional o Empresa

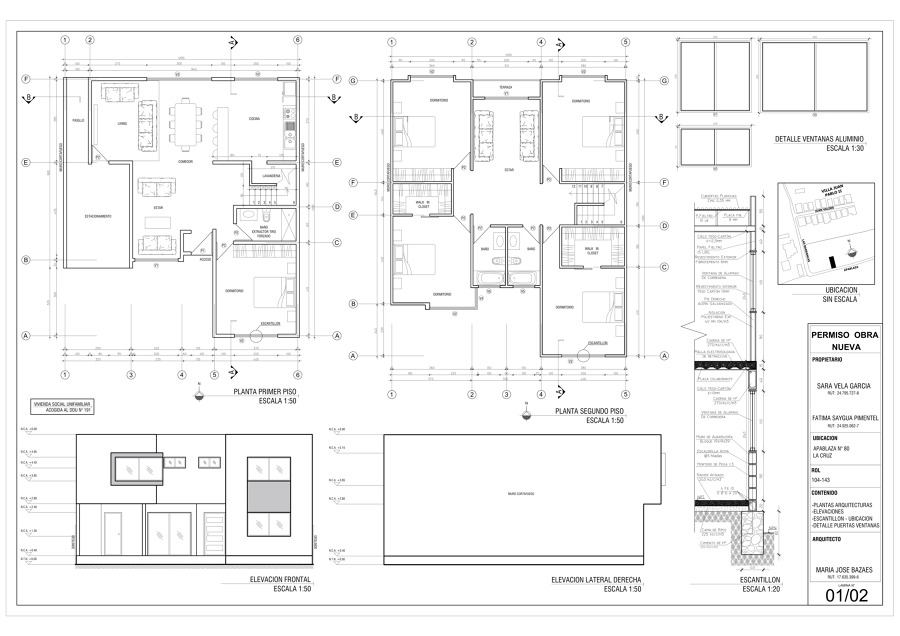
Plantas de la vivienda

x
Guardar foto Compartir
Plantas de la vivienda

Obsidian Arquitectura Y Publicidad

Profesional de Arquitectos en Quillota

Somos una empresa de arquitectura y publicidad, enfocada en realizar proyectos de regularización, permisos municipales… ver más

Detalles del proyecto:

OBRA NUEVA

Fotografía 2 de 3

Ver proyecto completo
Obtención de permiso y recepción definitiva de vivienda unifamiliar de 220 m2, proyecto sanitario e instalación… ver proyecto
Etiquetas descriptivas:
arquitectos, construcción
Plantas de la vivienda Elevaciones y cortes

Otras fotografías que te pueden interesar:

Vivienda de 85 mt2 Vivienda HCS - Concepción Vivienda HCS - Concepción Vivienda HCS - Concepción Vivienda HCS - Concepción Vivienda HCS - Concepción jardín urbano con plantas
Vivienda de 85 mt2 Vivienda HCS - Concepción Vivienda HCS - Concepción Vivienda HCS - Concepción Vivienda HCS - Concepción Living con plantas Vivienda con estacionamiento
vivienda 45 mt2 Vivienda HCS - Concepción Vivienda HCS - Concepción Vivienda HCS - Concepción Vivienda HCS - Concepción vivienda pequeña Renovación vivienda unifamiliar.

Detalles de la fotografía:

Etiquetas:
no hay etiquetas
  • habitissimo
  • fotos
  • foto: plantas de la vivienda de obsidian arquitectura y publicidad #420375
Anunciado en TV Anunciado en TV

Cuéntanos qué necesitas y recibe hasta 4 presupuestos

Mejora tu hogar
  • Pide presupuestos
  • Directorio de empresas
  • Precios del sector
  • Preguntas a la comunidad
  • Ideas y proyectos
  • Galería de fotografías
Mejora tu hogar
  • Pide presupuestos
  • Directorio de empresas
  • Precios del sector
  • Preguntas a la comunidad
  • Ideas y proyectos
  • Galería de fotografías
Particulares
  • Ayuda para particulares
  • Regístrate
  • Consejos para contratar con Habitissimo
Particulares
  • Ayuda para particulares
  • Regístrate
  • Consejos para contratar con Habitissimo
Profesionales
  • Ayuda para profesionales
  • Regístrate
  • Procenter
  • Descarga la app
Profesionales
  • Ayuda para profesionales
  • Regístrate
  • Procenter
  • Descarga la app
Sobre Habitissimo
  • Acerca de
  • Contacta
  • Teléfono Habitissimo
  • Prensa
  • Habitissimo Reclamo
  • Programa de afiliados
Sobre Habitissimo
  • Acerca de
  • Contacta
  • Teléfono Habitissimo
  • Prensa
  • Habitissimo Reclamo
  • Programa de afiliados
logo habitissimo habitissimo © 2009 - 2026 Términos de uso Política de privacidad Política de cookies